生产线banner
  1. 首页 您的位置:
  2. 首页 > 
  3. 生产线 > 
  4. 矿渣微粉生产线

矿渣微粉生产线

矿渣微粉生产线

欢迎实地参观考察!

项目简介

生产能力 生产能力:8-30万吨/年 进料粒度 进料粒度:2mm-10mm 工艺流程 工艺流程:矿渣烘干→挤压机→打散机→选粉机(细粉)→高细磨→成品
客服头像

全国统一热线:0371-

6777 2727

电话页面

配置设备

矿渣微粉生产线简介

矿渣微粉生产线

矿渣微粉在工程建设中被广泛应用,在配置混凝土的时候可以代替10~40%的水泥,混凝土的强度可以达到C60以上,可以提高混凝土的寿命,增加其强度,降低工程造价;不仅如此,矿渣微粉在水泥企业生产中可等量代替部分熟料用量,大幅度降低生产成本,降低游离钙,提高水泥安定性能的合格率,矿渣微粉掺入水泥中,提高水泥的综合性能,与水泥同等价位销售;所以,由此推断,矿渣微粉在未来有广阔的市场前景。

生产优势:可以大幅度提高水泥混凝土的强度,能配制出超高强水泥混凝土:可以有效抑制水泥混凝土的碱骨料反应,显著提高水泥混凝土的抗碱骨料反应性能,提高水泥混凝土的耐久性:可以显著降低水泥混凝土的水化热,适用于配置大体积混凝土。

客户收益:投资少,收益高,一般3年内即可回收成本。 矿粉使用广泛,随着国内市场对矿粉需求的增加。投资矿粉生产经济效益可观。.2×23m间接传热烘干机和SF1.2浮选机等多套先进设备。

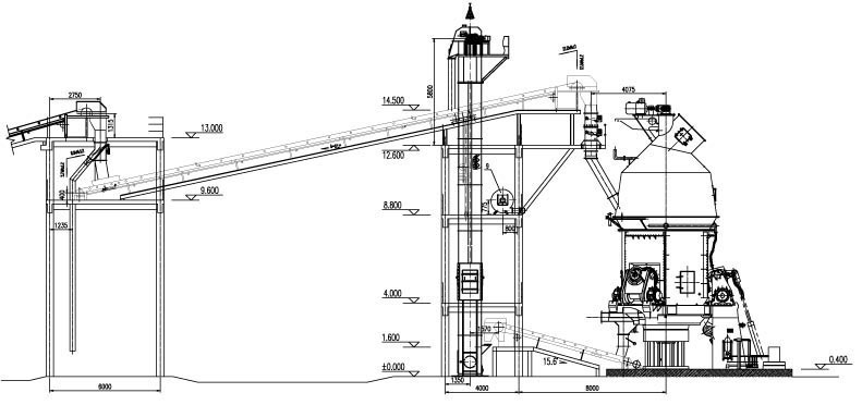
矿渣微粉生产线工作流程

矿渣微粉生产线工作流程

1、由轮式装载机喂入料斗内,再经斗式提升机送入石膏配料仓内、经计量后的混合料由胶带输送机送到矿渣烘干系统。

2、烘干后的矿渣通过螺旋输送机、斗式提升机送入一个钢仓内,然后通过带式输送机经除铁后送入磨机。

3、烘干后的磨渣进入磨机进行粉磨,粉磨出来的渣粉经过选粉机进行筛选后,与磨机渣粉由螺旋输送机送回磨机继续粉磨,合格的渣粉有螺旋输送机送至成品仓。

在线留言 免费获取适合您的设计方案

留言获取报价

预约参观车间

就近考察现场

客服头像

如果你对我们产品感兴趣或者有任何问题,均可在此留言,我们将热忱为您服务!

  • 姓名图标
  • 手机图标
  • 需求图标

工程师为您设计生产方案

免费咨询图标

想了解价格?产量?型号?售后?请联系我们,第一时间为您回复

0371-6777 2727 全国免费咨询热线
免费咨询报价
  • 60s急速应答
  • 24h免费定制方案
  • 40年品质保障

相关案例

底部banner

温馨提示:如果您对我们的产品感兴趣,可以立即和我们联系!

客服

电话页面

全国统一销售热线:0371-6777 2727